ARGONAUT BUILDING
FLORIDA STATE UNIVERSITY

PROJECT CONTEXT
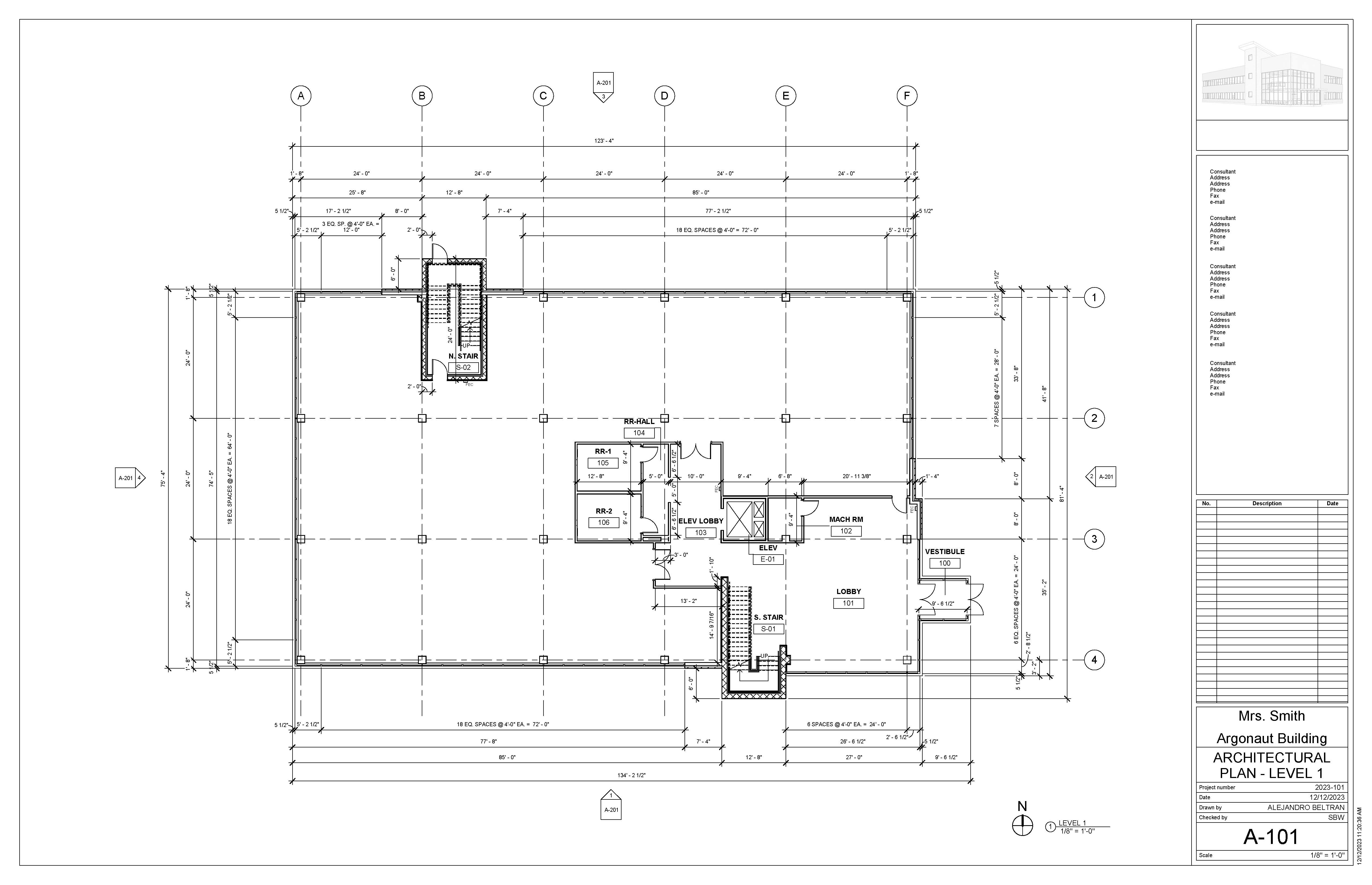
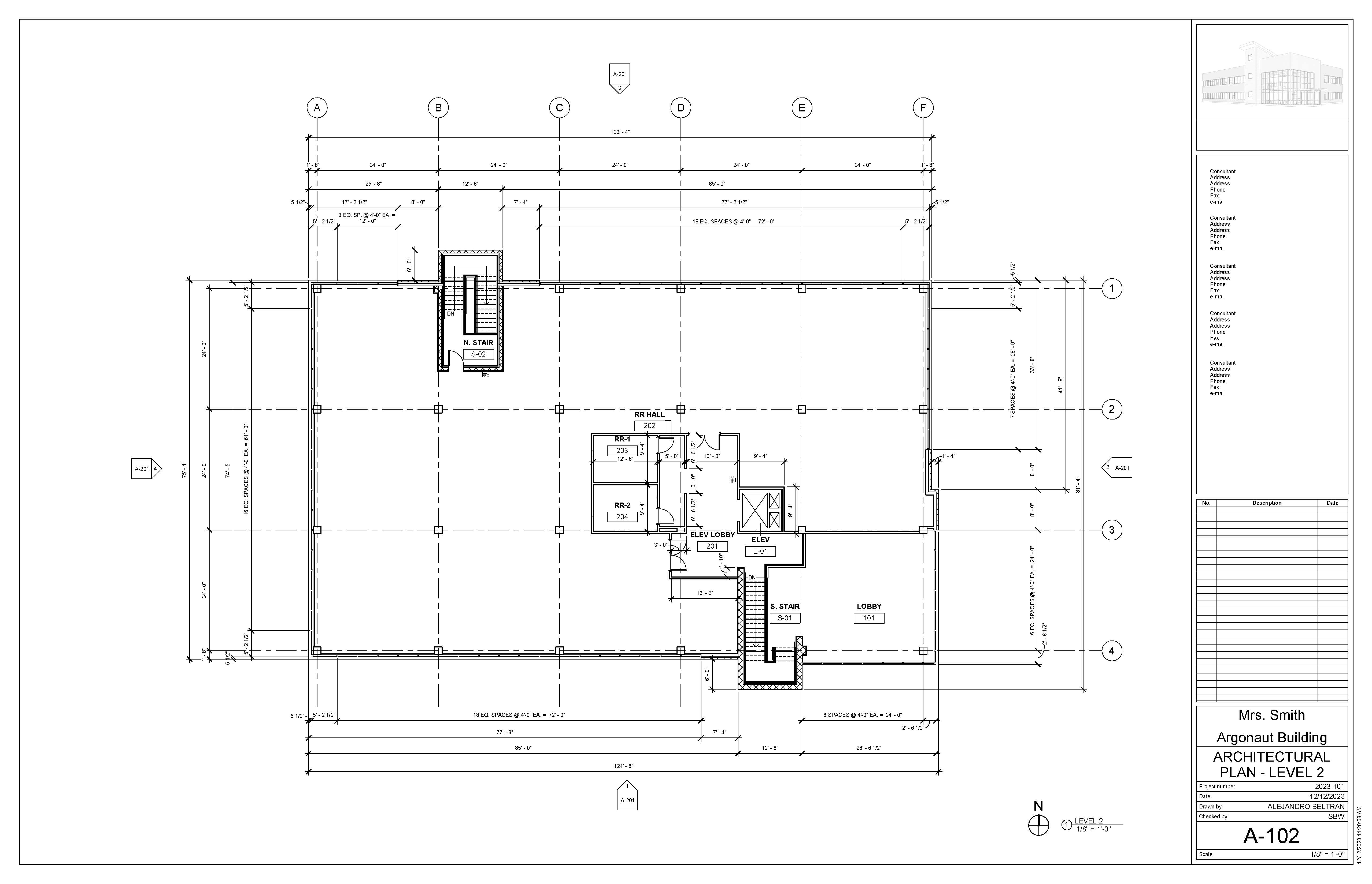
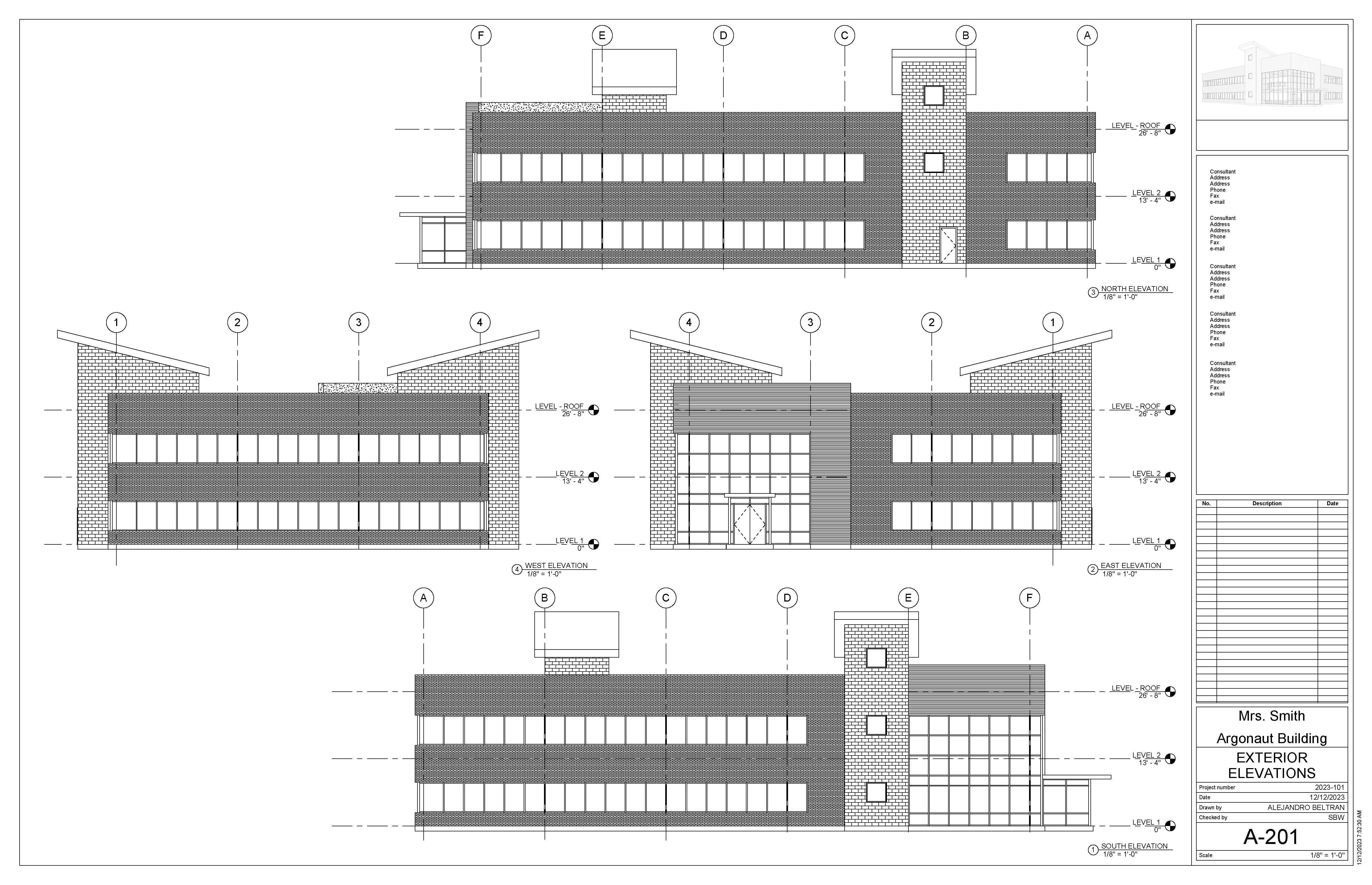
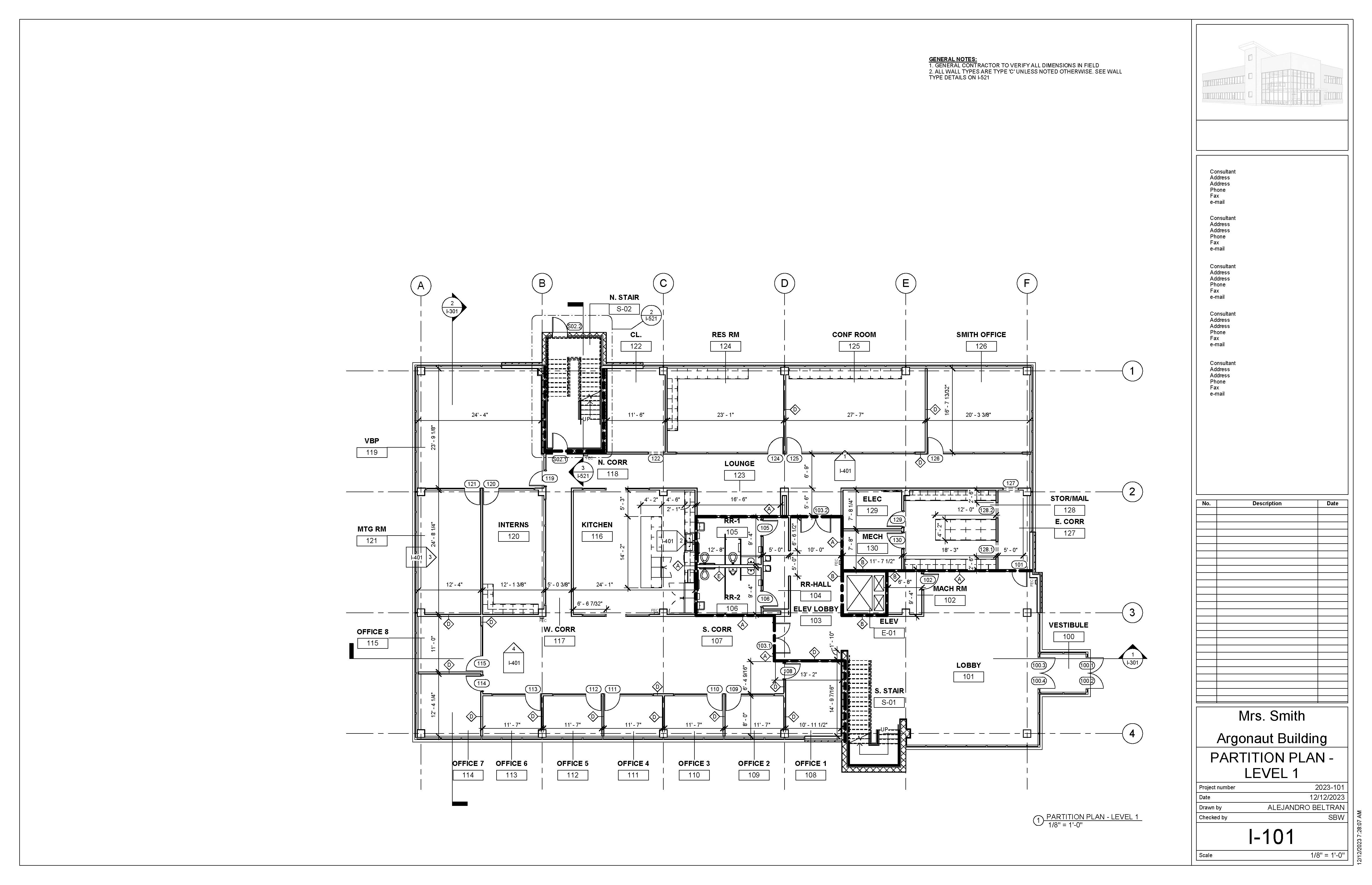
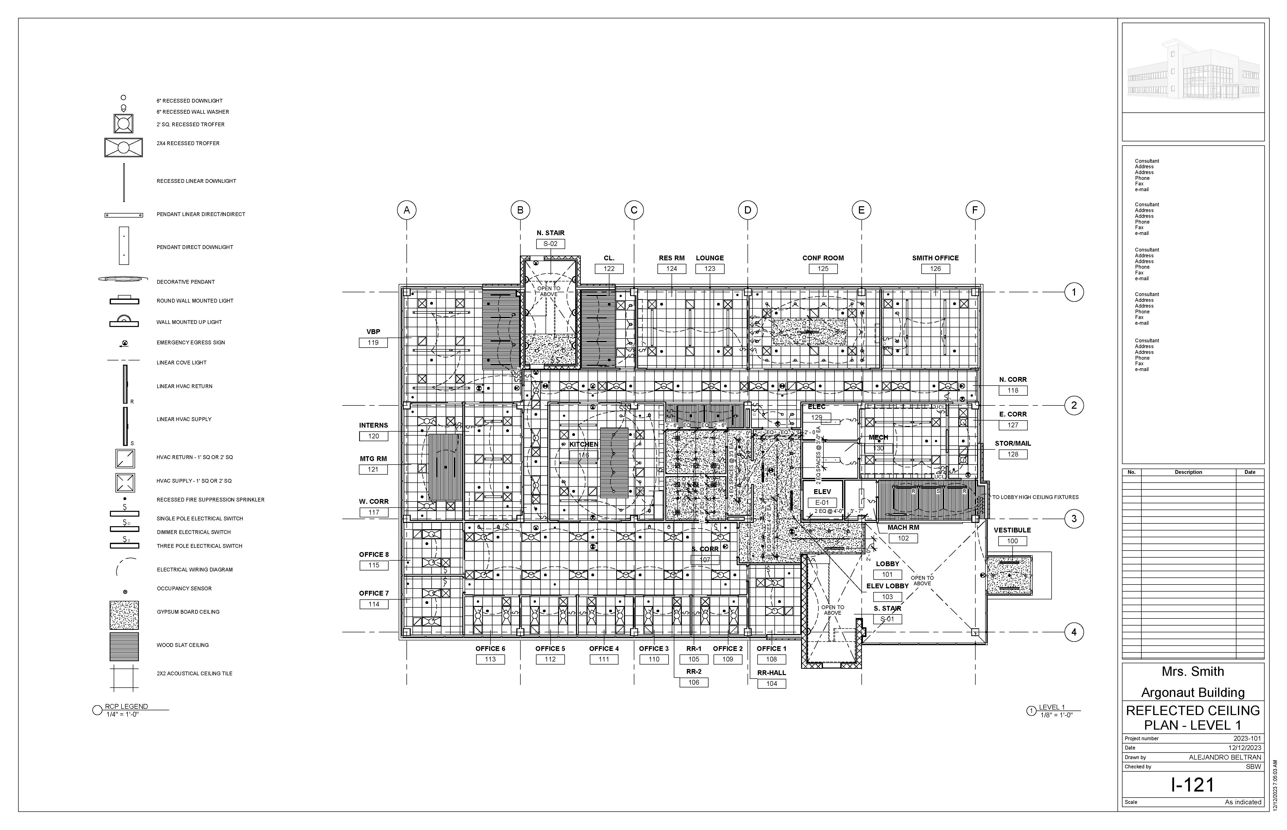
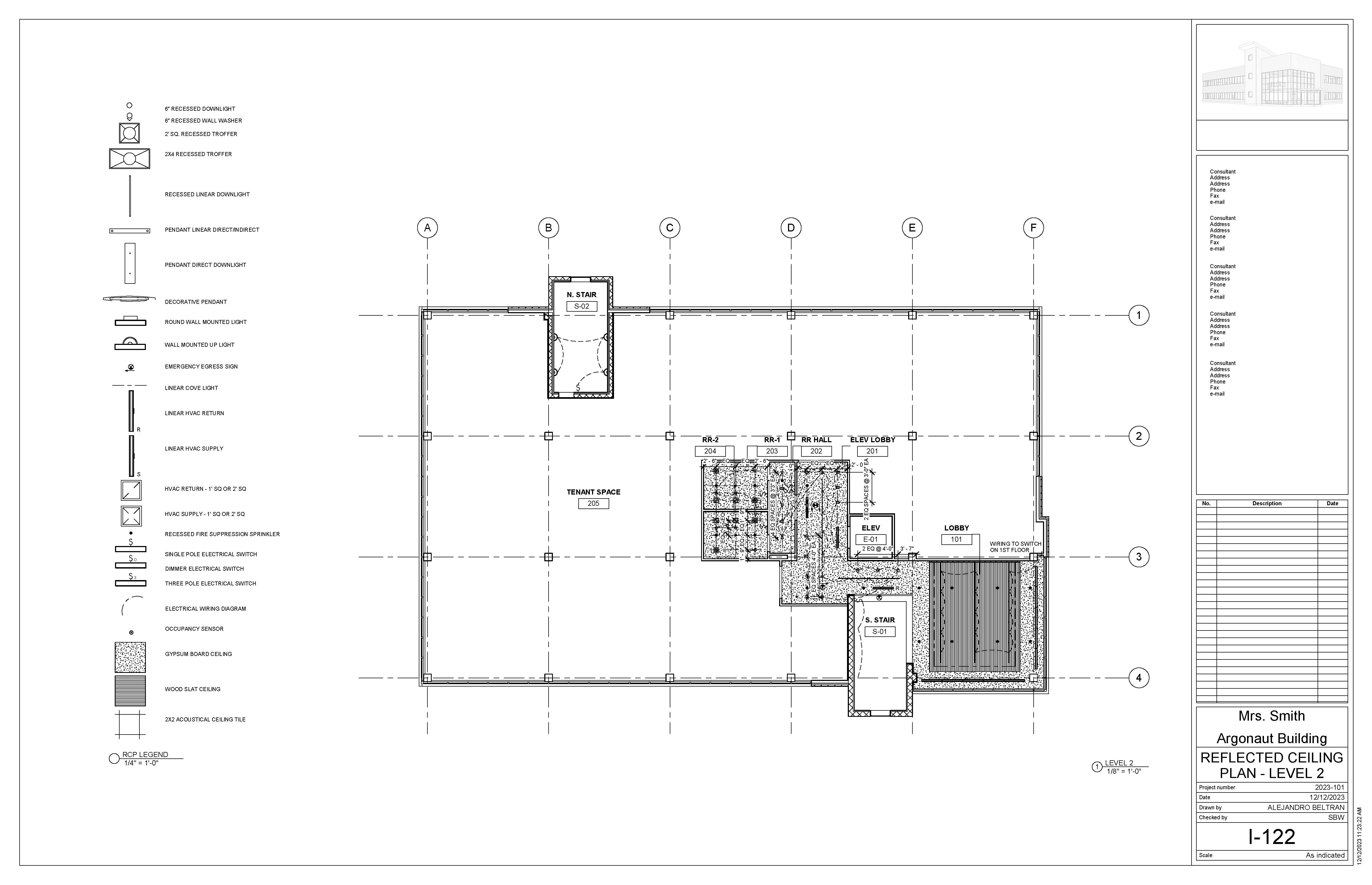
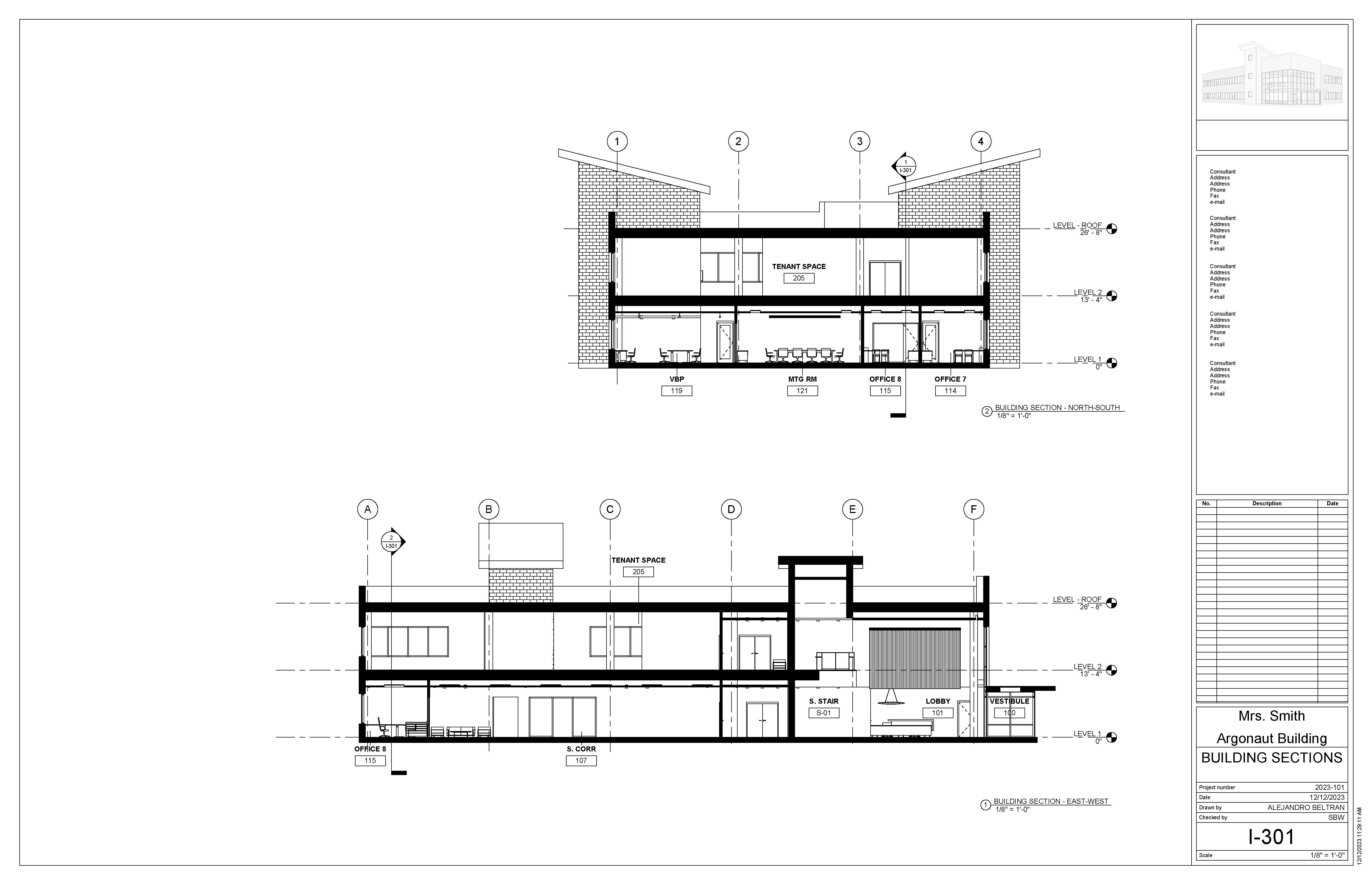
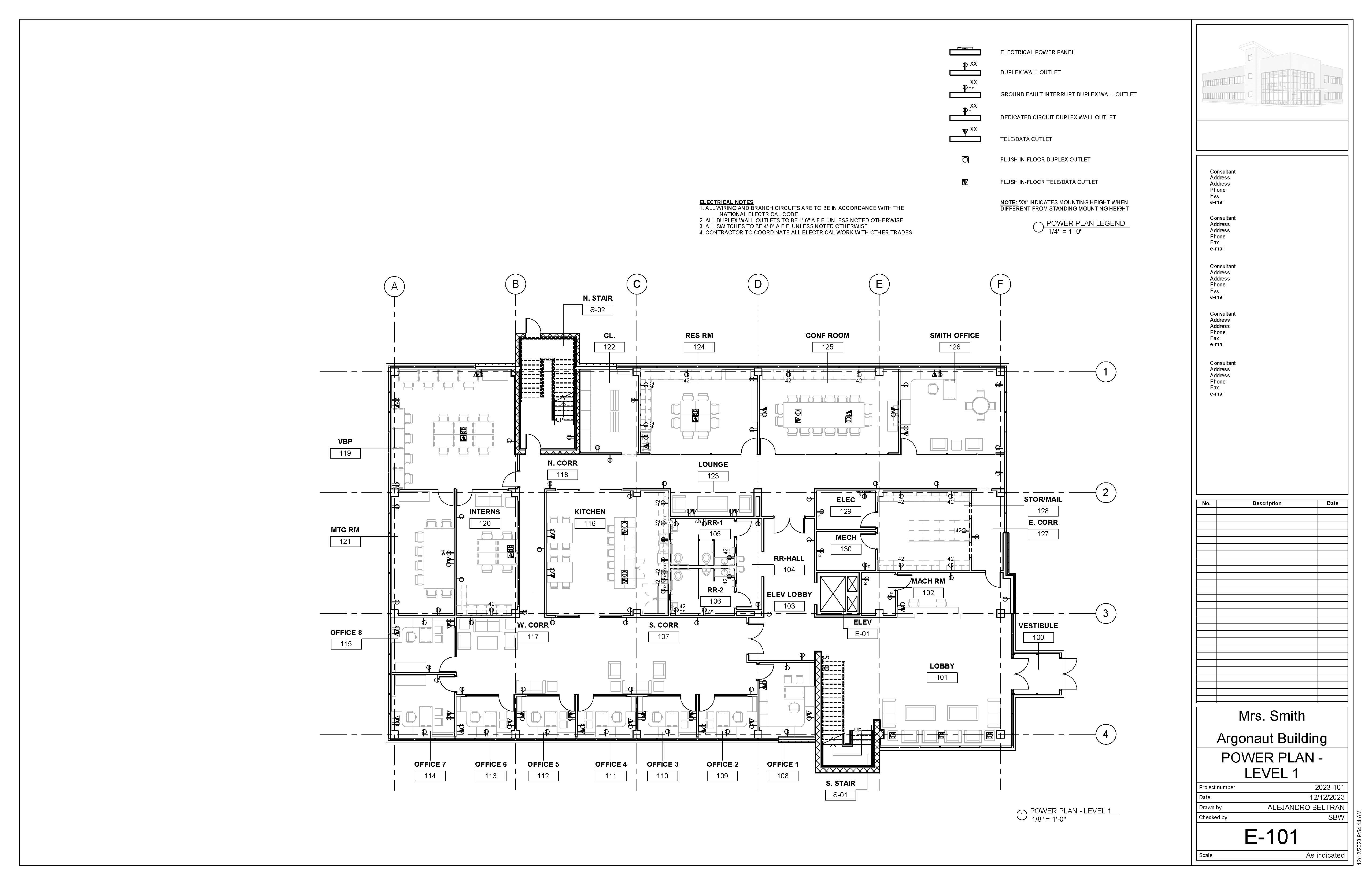
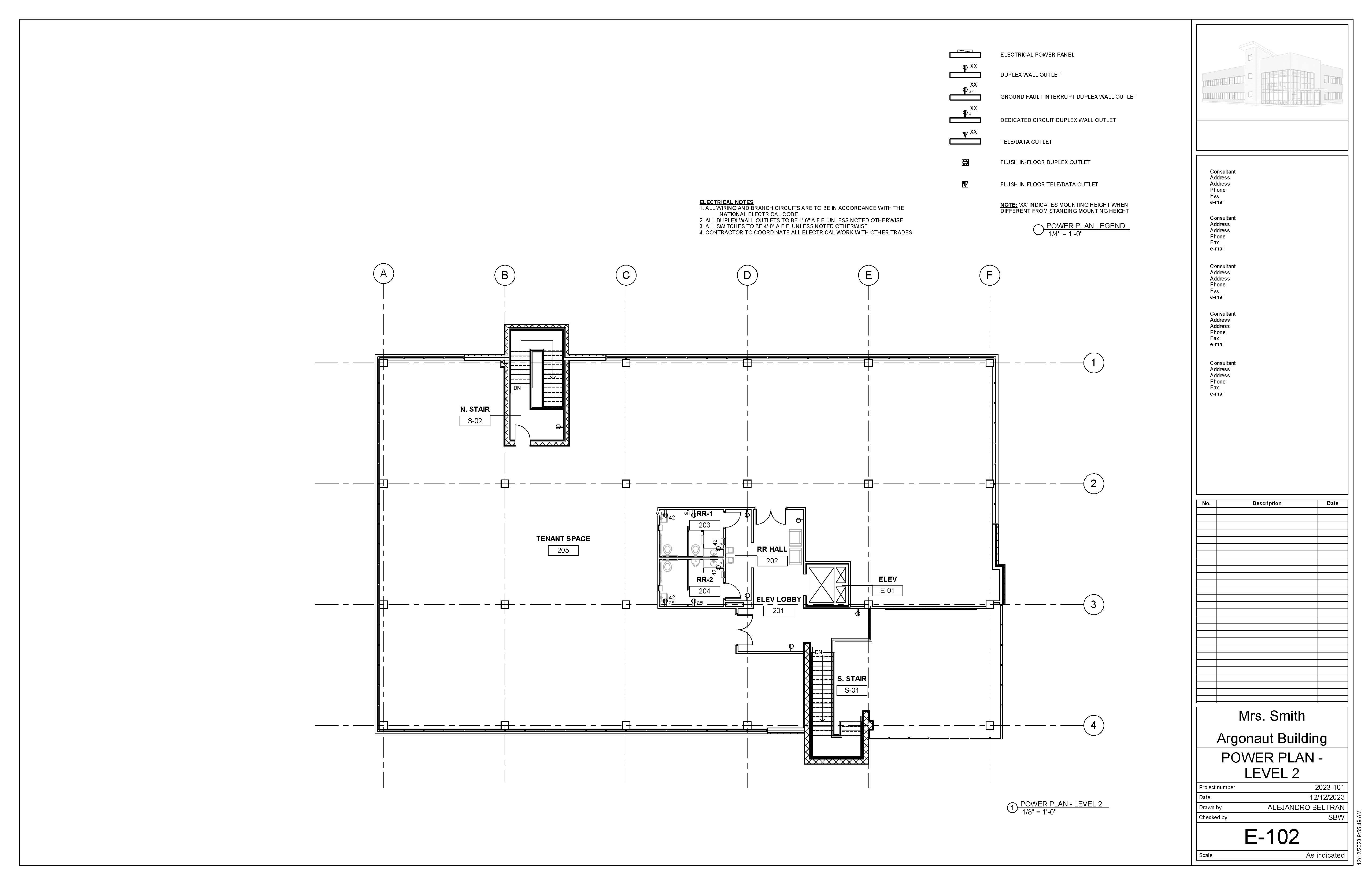
The Argonaut Building project is an exercise that develops students’ skills and command over construction documentation and building modeling. This roughly 17,000 sqft space is an interior build-out that features a large office space and shared lobby entrance on the first floor, with an additional tenant space on the second level. I was responsible for modeling the core & shell of the building, space planning required program elements for the office, as well as drafting a variety of technical plans.
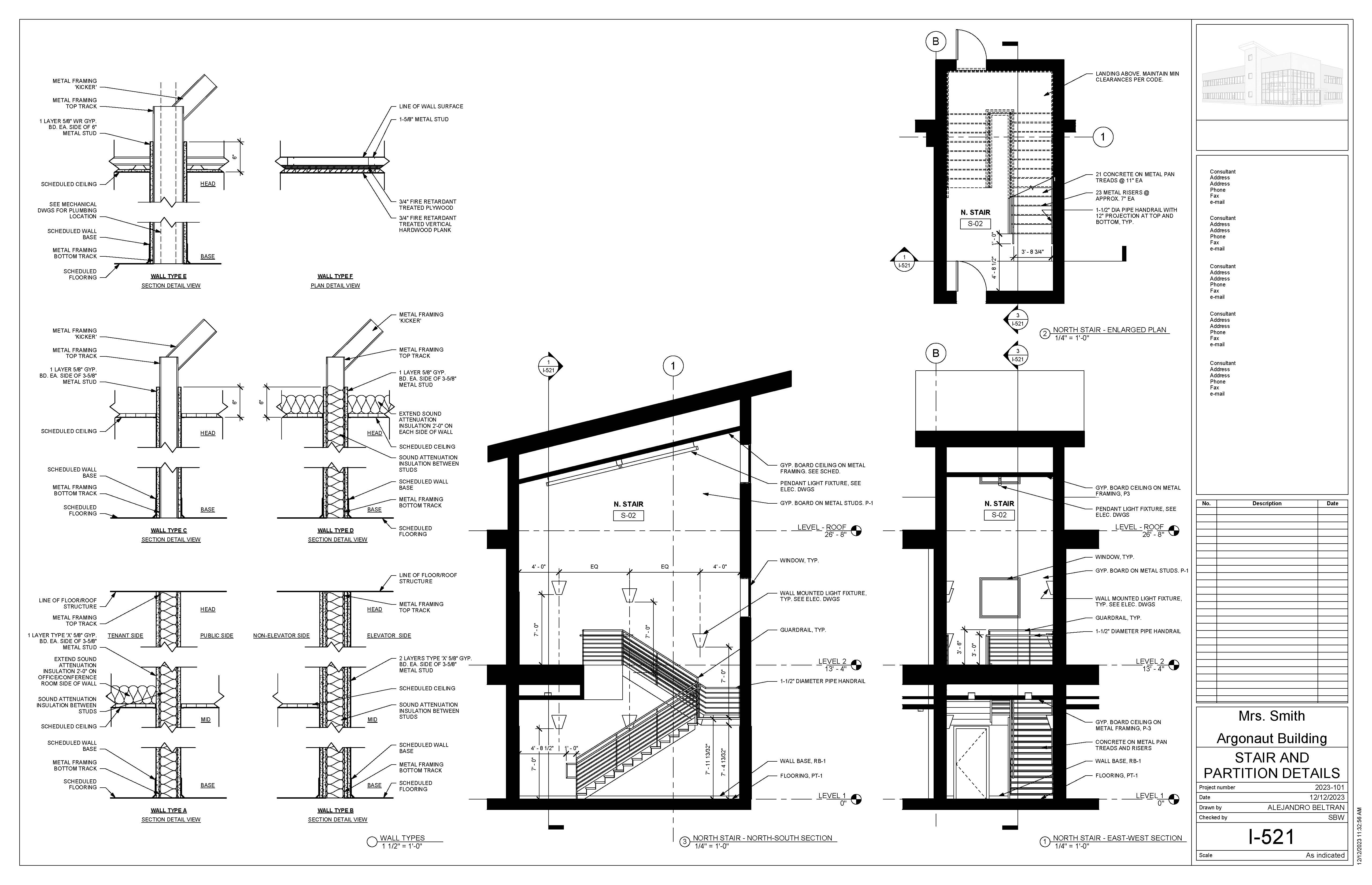
DETAIL DRAWINGS
FLORIDA STATE UNIVERSITY
PROJECT CONTEXT
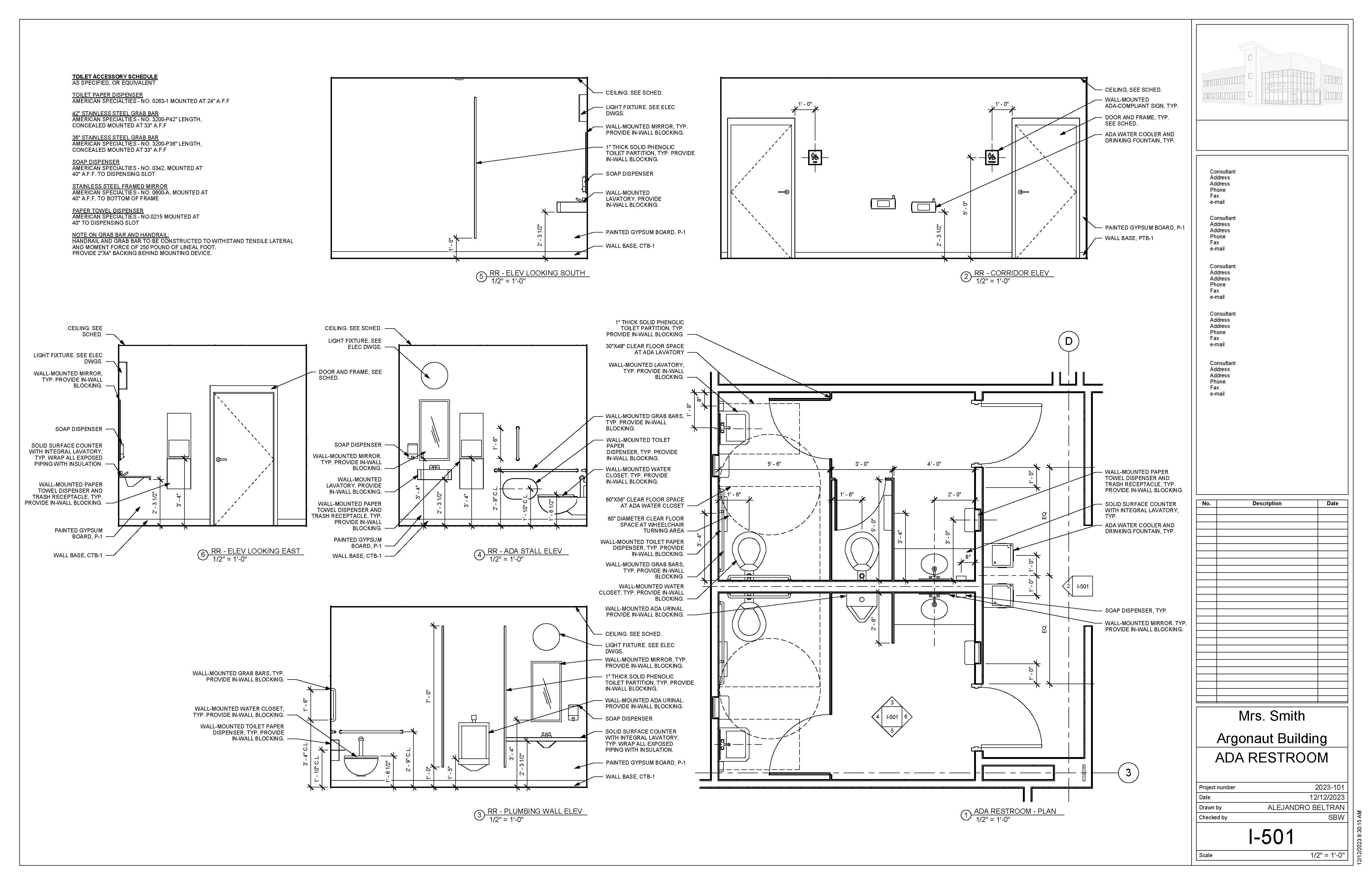
“Construction Systems” prepared me with the fundamental technical skills to succeed in the industry. I was equipped with the knowledge of how structural components such as stairs, walls, partitions, or millwork will be assembled by contractors, paying close attention to joinery, framing, & areas of fire-rating. Developing a critical understanding of detail work is a fundamental skill as a designer to become familiar with the language of construction and ensure the design is able to be executed to a level of precision and craft that is expected from the client.
CAMPUS DOOR PROJECT
FLORIDA STATE UNIVERSITY

PROJECT CONTEXT
Gilchrist Hall was originally constructed in 1925 and has served as a dormitory throughout its history. The building is characteristic of the Jacobean Revival period, a dominant architectural style on the Florida State University campus. The building’s primary facade features a gently curved Jacobean stone arch on a raised platform, along with other stone details above the entryway and a Flemish bond brick pattern.









































